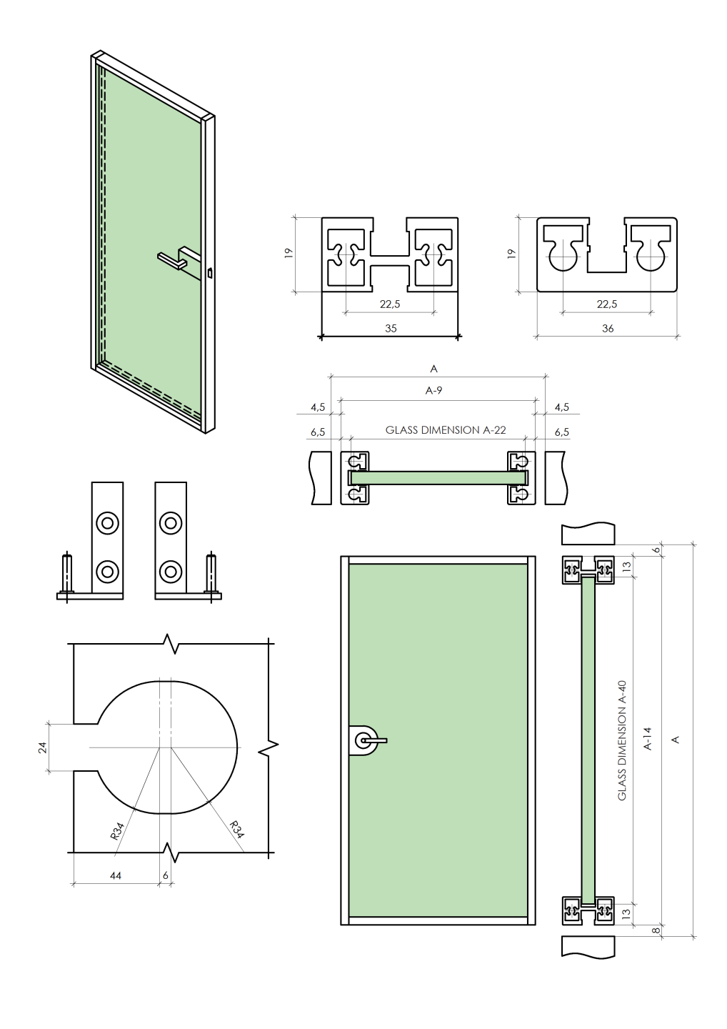
Description
- Horizontal profile (top/bottom) — 1x2m
- Vertical profile (side) — 2x3m
- Corner connection of profiles — 1 set.
- Hinges for fixing the aluminum frame to the frame — 1 set.
Parameters
Material
Defines the material from which the product is made.
Aluminium
Surface finish
Surface finish of product
Anodized
Glass t
Determines the thickness of the glass in mm the product is suitable for
8
Recommended weight of the wing
Odporúčaná hmotnosť krídla brány pre správnu funkčnosť pohonu.
60kg
L
Length parameter of the product
3000
H
1000



